Leave a Message

Thank you for your message. We will be in touch with you shortly.

Explore Our Properties

Property Description

On Thursday, May 16, 2024, at 9:00 a.m. at the Santa Barbara Superior Court, Anacapa Division, Dept. 5, located at 1100 Anacapa Street, Santa Barbara, CA 93121, this property will be sold by way of a public confirmation and overbid hearing.

The opening bid will be $4,330,000, with successive bid increments of $10,000. At least 2 business days before the hearing, bidders must prequalify by: (1) signing the rules for confirmation and overbid hearing; (2) providing proof of funds as to the bidder's highest bid; and (3) providing a $250,000 deposit via cashier's check, wire transfer, or ACH. All unsuccessful bidders will receive their $250,000 deposits back following the hearing. Prequalified bidders may appear in person or remotely via zoom.

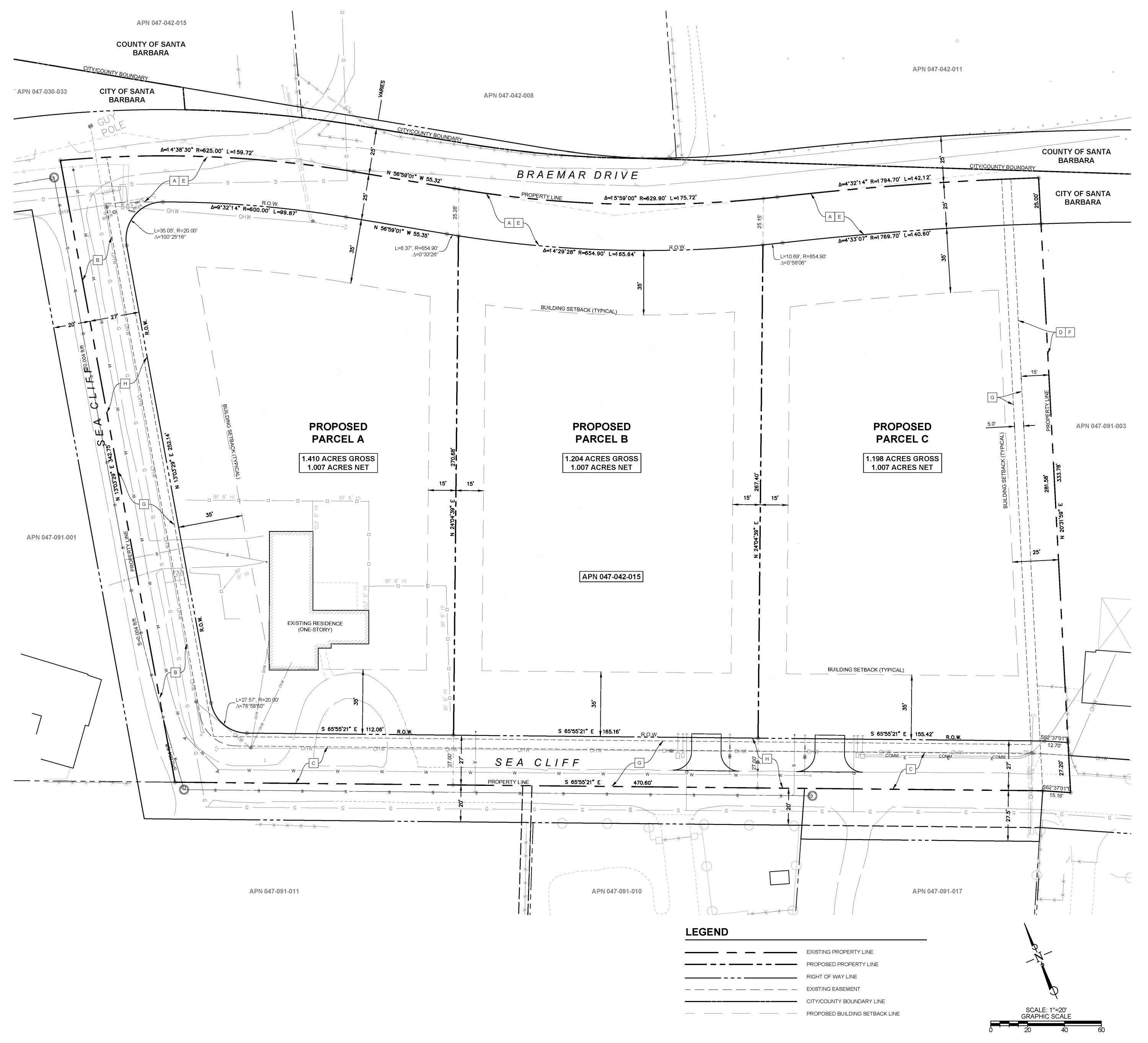
3.19+- AC flat parcel with existing home. Situated on one of the most prestigious streets in Santa Barbara lies an incredible opportunity to develop a 3.19+- acre flat parcel with existing Midcentury Home. The momentum on Sea Cliff is undeniable as a sought after estate location with many notable multi-million dollar estates and several in development.

This premier street is positioned above the cliffs overlooking the Pacific Coastline, Channel Islands and Hendry's Beach with views of the majestic Santa Ynez Mountains. Sea Cliff offers tremendous privacy with no through traffic and convenience to all that Santa Barbara has to offer. Save valuable time building with available plans to split lot into 3 one acre parcels and full grading plans.

Discover this remarkable 3.19+- acre flat parcel of building and development potential. The expansive lot is street to street and ideally situated with mountain views and possibility for ocean, island and sunset views. Situated on one corner of the property sits a charming 1,900+- sf Midcentury home built in the 1966 that is well proportioned and solidly built. Gather with friends and family in the enclosed backyard anchored by a stately heirloom avocado tree. Easy to update, offer for lease or live in while building your dream home or development.

Properties with this much land, on a highly desirable street with the potential for a lot split are truly rare in the Santa Barbara area. An extraordinary opportunity to create your own exclusive family compound, trophy estate, private retreat or three home development - you decide!

Conveniently located in a premier location on a private street but minutes to world renowned beaches, parks, hiking, shopping, Santa Barbara and Montecito.

Property details provided by seller or others. Buyer to verify.

Overview

Property Status
Sold
Lot Size
3.19 Acres
MLS ID
23-571
Property Type
Residential
Year Built
1966

Features & Amenities

Total Area
1,900 Sq.Ft.
Neighborhood
Santa Barbara
Architecture Styles
Ranch
View Description
Other, Mountain(s), Setting, Wooded
Water Source
Meter In, SB Wtr
Roof
Composition
Lot Features
Level, Corner Lot, Other
Parking
Gar 2, Attached, Other
Heat Type
Forced Air
Laundry Room
Other, Laundry Room
Fireplace
LR
Appliances
Refrigerator, Built-In Gas Range, Dishwasher, Disposal, Dryer, Washer
Sewer
Septic In
Substructure
Slab
Disability Features
Other
Security Features
Other
Other Exterior Features
Other, Patio Open, Dog Run, Lawn, Fruit Trees, Wooded, Fenced: BCK, Fenced: PRT
Elementary School
Monroe
Middle School
LaCumbre
High School
San Marcos
Sales Price
$4,300,000
Zoning
R-1

Downloads

3139 Sea Cliff

Schedule a Tour

We would love to help you see this beautiful home! As a full-service brokerage, we can help you tour. Please submit an offer, and answer questions about the buying process.

Thank you

for your interest in 3139 Sea Cliff, SANTA BARBARA, CA 93109

3139 Sea Cliff
Navigate

_

Santa Barbara

Explore Santa Barbara

read more
3139 Sea Cliff
explore in 3d

I'm Interested In

3139 Sea Cliff

or
  • CallTaylor Tatman

    License #02152322

    (805) 452-2149
  • Portfolio

    Property Spotlight

    • 1409 Shoreline Drive Sold

      $8,500,000

      1409 Shoreline Drive, SANTA BARBARA, CA 93109

      • 4 Beds
      • 4 Baths
      • 4,357 Sq.Ft.
    • 3139 Sea Cliff Sold

      $4,300,000

      3139 Sea Cliff, SANTA BARBARA, CA 93109

      • 3 Beds
      • 2 Baths
      • 1,900 Sq.Ft.
    • 2363 Whitney Avenue Sold

      $4,075,000

      2363 Whitney Avenue, SUMMERLAND, CA 93067

      • 3 Beds
      • 3 Baths
      • 2,517 Sq.Ft.
    • 215 Las Ondas Sold

      $2,810,000

      215 Las Ondas, SANTA BARBARA, CA 93109

      • 3 Beds
      • 3 Baths
      • 1,609 Sq.Ft.
    • 345 Sierra Vista Road For Sale

      $2,750,000

      345 Sierra Vista Road, MONTECITO, CA 93108

      • 2 Beds
      • 2 Baths
      • 1,284 Sq.Ft.
    • 2697 Montrose Place Sold

      $2,450,000

      2697 Montrose Place, SANTA BARBARA, CA 93105

      • 4 Beds
      • 3 Baths
      • 2,322 Sq.Ft.
    • 441 Baldwin Road Sold

      $2,035,000

      441 Baldwin Road, SANTA BARBARA, CA 93105

      • 3 Beds
      • 2 Baths
      • 1,410 Sq.Ft.
    • 225 W Mission Street Sold

      $1,950,000

      225 W Mission Street, SANTA BARBARA, CA 93101

      • 8 Beds
      • 3 Baths
      • 2,645 Sq.Ft.
    • 5230 Calle Luarda Sold

      $1,895,000

      5230 Calle Luarda, SANTA BARBARA, CA 93111

      • 3 Beds
      • 3 Baths
      • 1,902 Sq.Ft.
    • 3204 Calle Pinon Sold

      $1,800,000

      3204 Calle Pinon, SANTA BARBARA, CA 93105

      • 4 Beds
      • 3 Baths
    • 6615 Sabado Tarde Road Sold

      $1,680,000

      6615 Sabado Tarde Road, GOLETA, CA 93117

      • 4 Beds
      • 2 Baths
    • 1232 Quinientos Street Sold

      $1,650,000

      1232 Quinientos Street, SANTA BARBARA, CA 93103

      • 1 Bed
      • 1 Bath
    • 655 Catania Way Sold

      $1,575,000

      655 Catania Way, SANTA BARBARA, CA 93105

      • 3 Beds
      • 2 Baths
      • 1,125 Sq.Ft.
    • 3639 San Remo Drive, 16 Sold

      $915,000

      3639 San Remo Drive, 16, SANTA BARBARA, CA 93105

      • 2 Beds
      • 2 Baths
      • 1,046 Sq.Ft.
    View All

    Follow Us On Instagram